E-mail Google Twitter Facebook Marker Info Arrow Forward Place Padlock

'Rietrikki' - 2.4km from the sea

Available Special Offers
'Rietrikki' - 2.4km from the sea has the following special offers:
Click a deal for more details
Sleeps: 8Bedrooms: 4Bathrooms: 1

Description 'Rietrikki' - 2.4km from the sea: Blåvand addremove

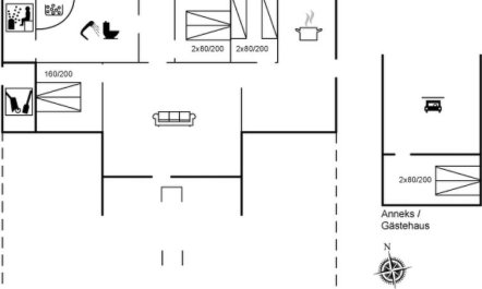
"Rietrikki" - 2.4km from the sea", 4-room house 139 m2. Object suitable for 8 adults. Living room with TV. 1 room with 1 double bed. 1 room with 1 double bed. Studio 1 room with with 2 beds and 1 double bed. Kitchen (oven, dishwasher, 4 ceramic glass hob hotplates, microwave, freezer). Shower/WC, hydro massage bath. Facilities: children's high chair. Internet (WiFi). Please note: non-smokers only. Maximum 2 pets/ dogs allowed. 573

Amenities addremove

  • check Baby cot available (up to 2 years)
  • check Grill or BBQ
  • check Cleaning
  • check Chef can be reserved, on request
  • check Dishwasher
  • check Fireplace/stove
  • check Whirlpool
  • check Microwave
  • check Parking space
  • check Pet friendly
  • check Sauna
  • check Suitable for families
  • check Terrace
  • check Washing machine
  • check Freezer
  • check Smoking in the property is not allowed
  • check TV
  • check Wifi
launch Book Direct Now
  • Safe and secure instant booking
  • Best price guaranteed online
  • Book direct with managing agent

Location addremove

Closest Rentals addremove

home Home Page favorite Favorites check_circle Property Owner? List with us